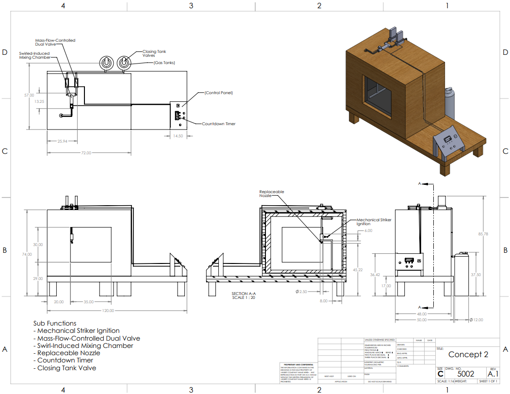
ENGINEERING PROJECT PORTFOLIO

My engineering work centers on identifying real mechanical limitations, tracing them to their root causes, and implementing solutions that perform reliably in practice. Across projects ranging from precision gripper redesign (MQCG) to custom tool development, overpressure chamber structural improvements, and MATLAB-based system analysis, I’ve led design modifications, analytical evaluations, validation testing, and cross‑functional coordination to ensure each solution met functional, safety, and performance requirements.